











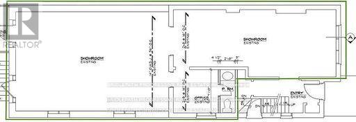
Office/Professional/Showroom/Workshop Space in a unique standalone building located in the heart of Casa Loma / South Hill area with 3 car parking. Superb Access Auto/Foot/Transit and excellent proximity to Yorkville/Bloor/St. Clair areas. Full ground floor level of mixed use building on Davenport. Natural light from large windows & doors. Hardwood throughout, open ceiling and spacious rear with back doors. Rear outdoor area could be a sitting area. Current use is a condo sales office. Zoning permits uses that are office/Showroom/Workshop. Gross lease, taxes are included.