










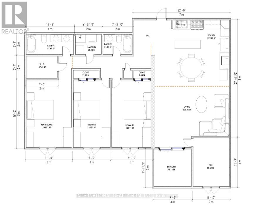
Spectacular view of the city skyline, the CN Tower, Eglinton Flats, and surrounding green areas! Welcome to the "Winston House" Unit 503. This huge apartment is ideal for a large family or visionary investor. It is located close to a wide range of amenities, with convenient access to the TTC and the upcoming Crosstown subway extension. Just minutes from major roads and highways, this property offers exceptional convenience and connectivity. This spacious 3+1 bedroom apartment features a large primary bedroom complete with a 4-piece en-suite bathroom and a walk-in closet. Generously sized bedrooms and living areas provide comfort and flexibility, making it ideal for a growing family as well. Residents enjoy a variety of amenities designed to enhance your lifestyle, includes indoor pool, sauna, tennis courts, gym, party room, bike storage, and much more. Take in the spectacular south-facing views of the city . Great opportunity! Don't miss it!