




















Welcome to this well-maintained single-family townhouse offering 3 spacious bedrooms and 3.5 bathrooms in a highly convenient Welland location. Situated near the intersection of South Pelham Road and Webber Road, this home is just minutes from Niagara College, Niagara Falls, and Highway access, making it ideal for commuters and students alike. This bright and functional home features modern finishes, including stainless steel appliances, and offers comfortable living space for families or professionals. Enjoy the convenience of 3 parking spaces and a pet-friendly environment.
| Room | Level | Size |
|---|---|---|
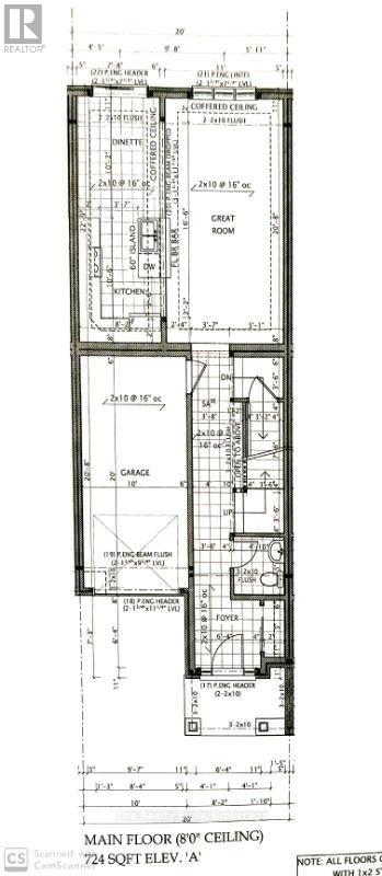
| Great room | Ground level | |
| Dining room | Ground level | |
| Kitchen | Ground level | |
| Primary Bedroom | Second level | |
| Bedroom 2 | Second level | |
| Bedroom 3 | Second level |