



















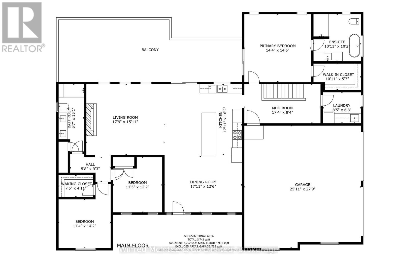
81 acres showcasing quality craftmanship, functional living, and the ideal farm life. The property features a luxury home was built in 2022, solid bank barn, crop land, pasture for horses or cattle, plus groomed trails and a creek meandering through the forest. There are 45 cleared acres, and a 10-acre maple bush. The house was intentionally designed with an open-concept layout and a walkout basement, showcasing quality finishes throughout. An oversized walkout deck is perfectly positioned to maximize views of the exceptional landscape. The exterior is finished with wood siding and limestone stone, carrying a 50-year warranty. The bank barn is solid and equipped with water, stalls, and ample dry storage. The land has groomed trails, workable fields, fenced pasture, and the Traverston Creek. Added bonus is the adjacent 25-acre public Farden Lake. Additionally, the Glenelg Klondyke Trail, offering 400 acres for riding, hiking, and groomed cross-country skiing, is within easy reach. This is not just a home; it is the dream rural lifestyle!