




















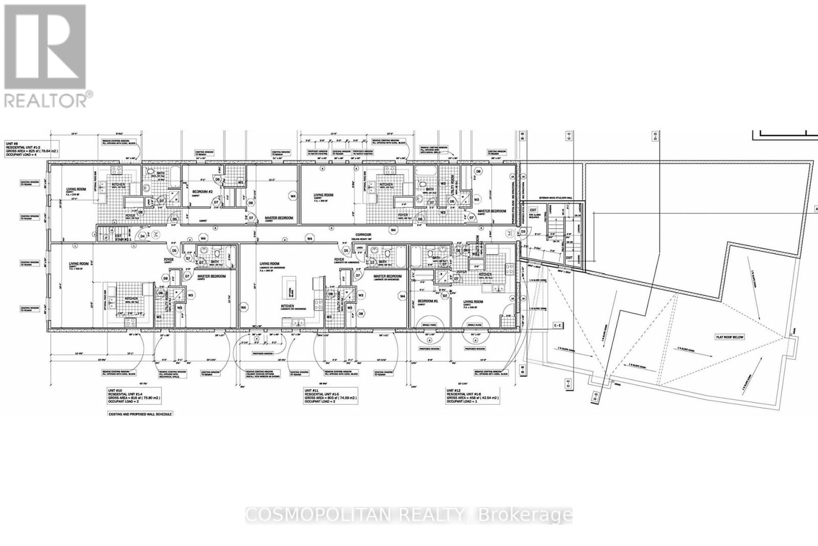
Prime Commercial Asset in the Heart of Niagara Falls' Tourism Core. Position Your Business in one of Niagara Falls' most dynamic and high-growth corridors, just steps from Clifton Hill, Fallsview, major hotels, and the Casino district. This is a rare opportunity to own both the LAND AND BUILDING in a location where business value is driven by constant foot traffic, global tourism, and long-term redevelopment momentum. The 13,240 sq. ft. freestanding building is offered in RAW SHELL CONDITION with 10-11 ft ceilings, open-concept design, and flexibility for a wide range of commercial uses. Zoned GC - General Commercial, it supports a wide range of high-demand uses including restaurants, cafés, retail, grocery, offices, medical clinics, coworking spaces, fitness, breweries, and entertainment concepts and more. The second floor is ideally suited for residential apartments, office suites, or short-term rental (Airbnb-style) units, with potential to add a 3rd floor (Buyer to do own due diligence). On-site private parking, combined with flexible zoning, makes this a true multi-use asset. Adding to the long-term value, Ontario has recently unveiled a multi-billion-dollar initiative to transform Niagara Falls into a global tourism hub - often referred to as the "Las Vegas of the North." Surrounded by new condo developments, major hospitality projects, and the upcoming South Niagara Hospital, this location is positioned for strong appreciation and sustained revenue growth.A Vendor Take-Back (VTB) is available at a very attractive rate for a qualified buyer, enhancing financing flexibility. A rare opportunity to secure a signature commercial location in the heart of Niagara's ongoing revitalization-where location, land value, and future growth converge.