



















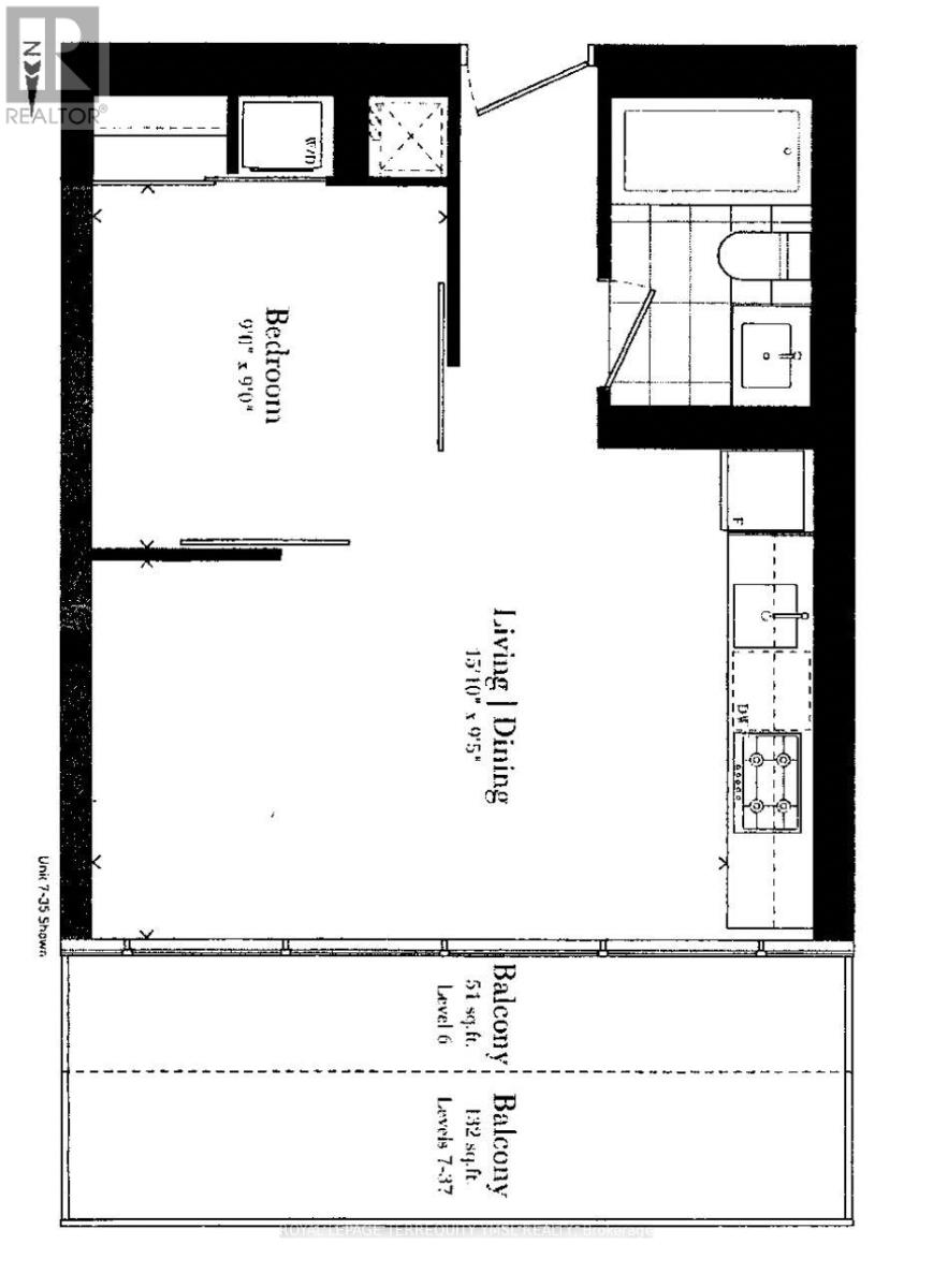
"Theatre Park" - a luxury high-rise in the heart of King West, directly across from the Royal Alexandra Theatre. This stylish junior one-bedroom suite features soaring 11' exposed concrete ceilings, featured concrete wall, engineered hardwood flooring throughout, and a walk-out terrace. The modern European-style kitchen is equipped with stainless steel appliances, gas cooking, and a gas BBQ connection on the balcony-perfect for urban living. Enjoy premium amenities including 24-hour concierge, a stunning rooftop lap pool and deck, party room, and a fully equipped fitness centre. Ideally situated on the same floor as the lounge and rooftop pool for exceptional convenience. Just minutes' walk to the subway, Financial District, and Eaton Centre. An ideal home for a professional seeking vibrant downtown living at its best.