

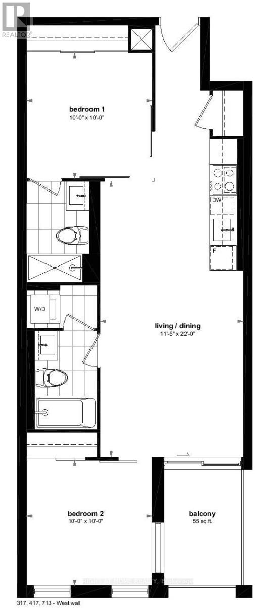
A rare opportunity to lease a split 2-bedroom, 2-bathroom condo with parking in one of Toronto's most desirable neighbourhoods at 20 Gladstone Avenue. This bright and spacious suite features an ideal split-bedroom layout, offering privacy and functionality, along with a modern kitchen complete with sleek appliances and contemporary finishes. Situated in a boutique building, this unit blends style, comfort, and practicality - perfect for today's urban professional. Located just steps from the energy of Queen Street West, enjoy immediate access to trendy restaurants, cafes, boutiques, galleries, and grocery stores. With excellent transit connectivity and a quiet, community-oriented atmosphere, this residence offers the perfect balance of lifestyle and convenience.
| Room | Level | Size |
|---|---|---|
| Living room | Main level | |
| Kitchen | Main level | |
| Bedroom | Main level | |
| Bedroom 2 | Main level |