


Welcome to this beautifully constructed raised ranch, nestled in one of Chatham-Kent's emerging subdivisions. This attractively priced, brand-new home by LIOVAS HOMES is ready to impress! Step inside to discover a fully finished home featuring 3+2 bedrooms and 3 full bathrooms. The property boasts a 3-car garage and a walkout basement, offering ample space and versatility. The open-concept kitchen, living, and dining areas are highlighted by elegant tray ceilings, creating a modern and inviting atmosphere. Located close to schools, shopping, and trails, with quick access to Highway 401, it ensures effortless commutes and easy access to all amenities. Don't miss the opportunity to make this home yours-there's still time to select your preferred finishes! For more information, contact the listing agent today.
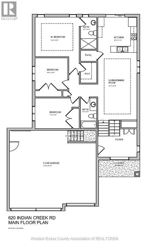
| Room | Level | Size |
|---|---|---|
| 3pc Bathroom | Main level | |
| 3pc Bathroom | Lower level | |
| 3pc Ensuite bath | Main level | |
| Recreation room | Lower level | |
| Bedroom | Lower level | |
| Bedroom | Lower level | |
| Foyer | Main level | |
| Eating area | Main level | |
| Living room | Main level | |
| Bedroom | Main level | |
| Bedroom | Main level | |
| Primary Bedroom | Main level | |
| Kitchen | Main level |