


















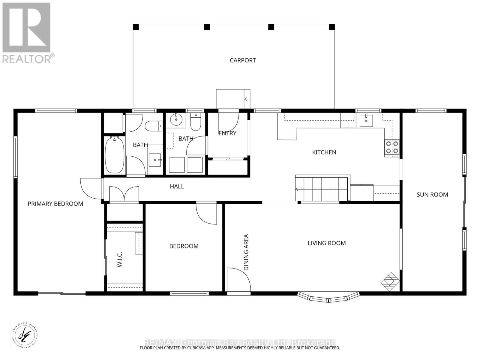
Welcome to Leeshore Estates! This awesome modular home (not mobile) with full basement is located on a larger well landscaped corner lot. Leeshore Estates is community situation right on Georgian Bay and has a beautiful sandy beach for its residence to use. This ranch bungalow has had many updates in recent years. Some of the many features are: Spacious Kitchen * Large Living Room with Gas Fireplace and walk out to deck and yard * Sunroom or Den with walk out deck and yard * Large primary bedroom with walk out to deck and yard, and walk-in closet * Updated Primary Bath with step through tub * M/F Laundry with powder room * Full Basement with: Bedroom, coldroom, rec room, larger storage room/workshop * Gas Furnace and Central Air * Large Carport * Paved Drive in 2024 * Decks, Gazebo, landscaped yard with gardens * 2 Sheds * 6 appliances. The land lease for the new owner will be $650/month and includes land rent and septic pump-out. Taxes are payable monthly at $93.65 (at time of listing). Some photos have be virtually staged and summer photos are 2 years old. Located In North Simcoe and Offers So Much to Do - Boating, Fishing, Swimming, Canoeing, Hiking, Cycling, Hunting, Snowmobiling, Atving, Golfing, Skiing and Along with Theatres, Historical Tourist Attractions and So Much More. Only 5 Minutes to Penetang, 45 Mins to Orillia, 45 Minutes to Barrie and 90 Mins to GTA.
| Room | Level | Size |
|---|---|---|
| Kitchen | Main level | |
| Cold room | Basement | |
| Living room | Main level | |
| Den | Main level | |
| Primary Bedroom | Main level | |
| Bedroom 2 | Main level | |
| Recreational, Games room | Basement | |
| Bedroom 3 | Basement | |
| Sitting room | Basement | |
| Other | Basement |