







PRICE IS INCLUDING NEW HST REBATE FOR AGREEMENTS SIGNED BETWEEN APRIL 1 2026 TO MARCH 31ST 2027 FOR PRINCIPAL RESIDENCE HOMES. - Welcome to the 2,400 sq ft Iris Model by award-winning Magnus Homes, to be built on a 40' lot in Kilworth Heights III. This design offers a functional 2 storey layout with 4 bedrooms, all having en-suite privileges, Laundry upstairs, and a side/garage door seperate staircase down to the basement for possible in-law setups. Bright open-concept great room, kitchen and dining area feature oversized windows, island kitchen, and patio door overlooking the backyard. Choose from multiple Magnus floor plans, including bungalows (1600sqft+) and two-storey homes (1800-3000sqft), with various lot sizes and premium options available. Quality finishes include 9' ceilings, engineered hardwood on main and halls, quartz countertops throughout, and fully tiled bathrooms. Exterior finishes selected from builder samples (brick/stone/siding). Fully sodded lot, concrete or paverstone driveway, and attached 2-car garage included. Model homes available to view by appointment: Indigo Model, 72 Allister Dr., Kilworth Heights West, and a bungalow model at 4 Sullivan St., Sol Haven, Grand Bend. Enjoy a family-friendly neighbourhood with a country feel, close to trails, Komoka Ponds, river, and community centre. NEW in 2026- walk to grocery, pharmacy and commercial plaza as well as newly built primary school in the neighbourhood! Photos are of previous Magnus built home and may vary by model and upgrades.
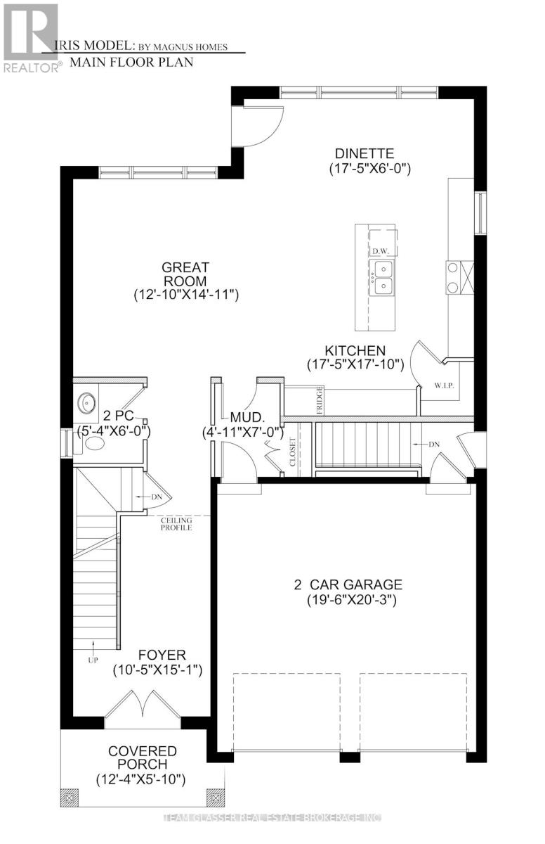
| Room | Level | Size |
|---|---|---|
| Great room | Main level | |
| Bedroom 3 | Upper Level | |
| Bedroom 4 | Upper Level | |
| Bathroom | Upper Level | |
| Dining room | Main level | |
| Kitchen | Main level | |
| Mud room | Main level | |
| Bathroom | Main level | |
| Foyer | Main level | |
| Bathroom | Upper Level | |
| Primary Bedroom | Upper Level | |
| Bedroom 2 | Upper Level | |
| Bathroom | Upper Level |