



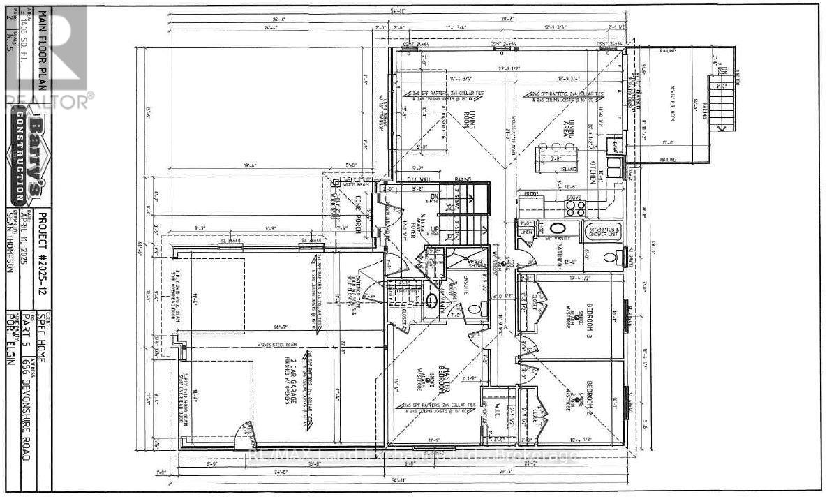
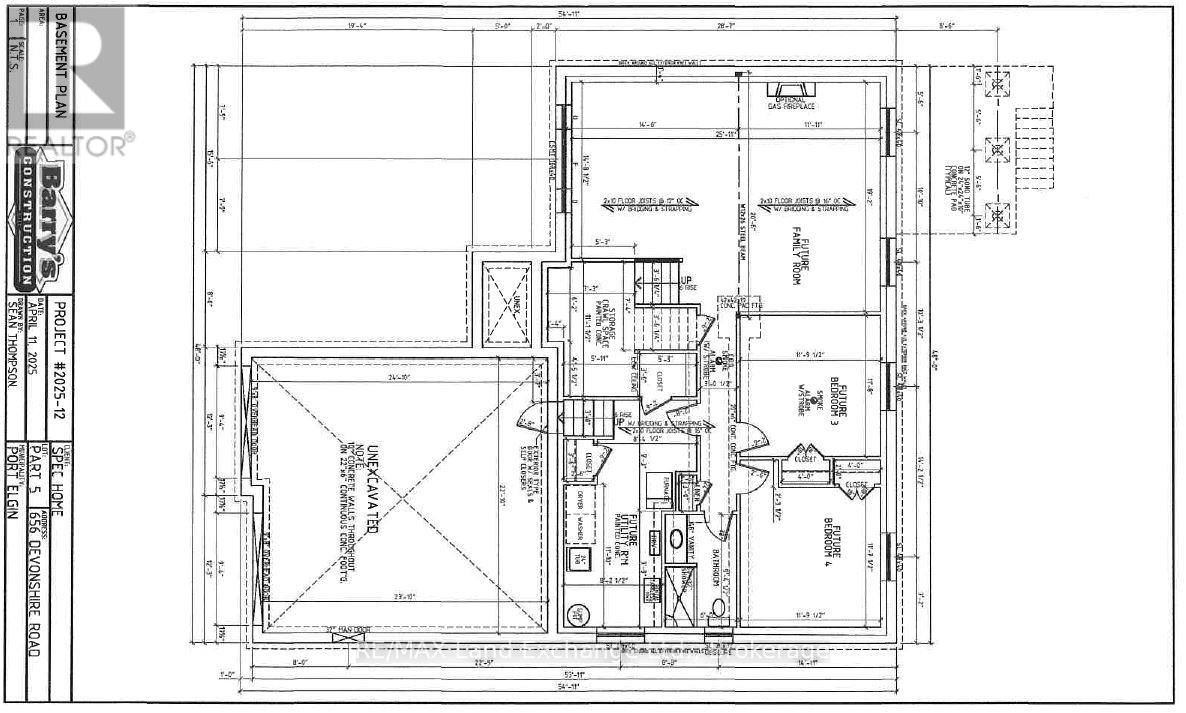
On a lot measuring 56ft x 182 ft, this 1406 sqft, 3 + 2 bedroom, 3 bath home is under construction. The location is 656 Devonshire Road in Port Elgin just a short walk to the rail trail, Food Basics, and the new Saugeen Shores Aquatic Center. The main floor is open concept with 9ft ceilings, vinyl plank and ceramic flooring, walkout to a 10 x 14 deck, Quartz kitchen counter tops and spacious entrance foyer. The basement will be finished and include a family room with gas fireplace, 2 bedrooms, 3pc bath, laundry / utility room with access to the 2 car garage measuring 22'8 x 24'. The yard will be completely sodded and a concrete drive will be in place. HST is included in the list price provided the Buyer qualifies for the rebate and assigns it to the Builder on closing. Prices subject to change without notice.
| Room | Level | Size |
|---|---|---|
| Foyer | Main level | |
| Laundry room | Basement | |
| Living room | Main level | |
| Dining room | Main level | |
| Kitchen | Main level | |
| Primary Bedroom | Main level | |
| Bedroom 2 | Main level | |
| Bedroom 3 | Main level | |
| Family room | Basement | |
| Bedroom 4 | Basement | |
| Bedroom 5 | Basement |