









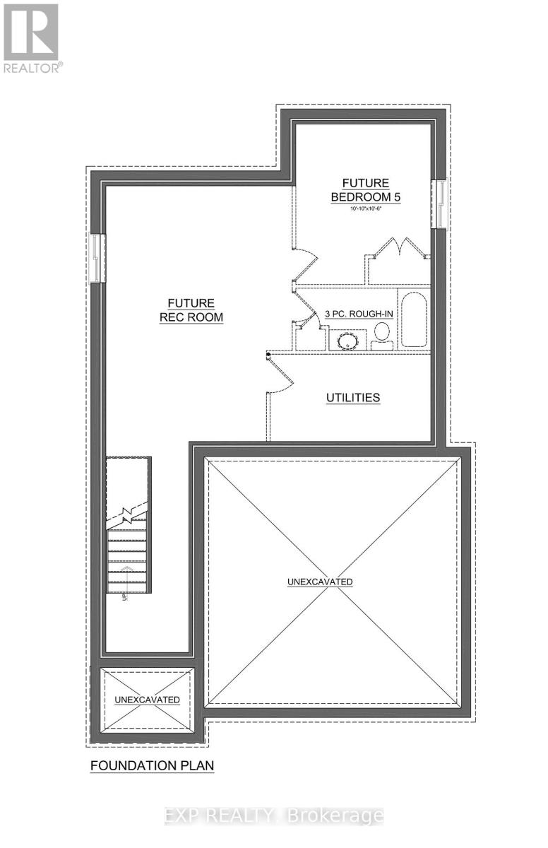
To be built by Built by Johnstone Homes, Open Houses held at Model located at 6875 Heathwoods. The Ellington is a to-be-built 4-bedroom, 3-bath detached home offering approximately 1,979 sq. ft. of finished space on a 48-ft lot backing onto mature trees in southwest London's desirable Heathwoods community. Additional 40', 52' and 58' lots are available, including quiet south-facing options with look-out or walk-out basements. Builder-finished basements and decks can also be arranged, with site plans and floor plans available upon request and two finished model homes open for viewing weekends.Inside, nine-foot ceilings, engineered hardwood in main living areas, and generous finish allowances create a modern, adaptable interior. A vaulted dining ceiling enhances the open-concept layout, ideal for everyday living and entertaining. Upstairs, four spacious bedrooms include a primary suite with double vanity and glass-tiled shower, while an unfinished basement with 3-piece rough-in offers future potential. Located near Colonel Talbot amenities, Lambeth Community Centre, and quick 401/402 access.
| Room | Level | Size |
|---|---|---|
| Kitchen | Main level | |
| Dining room | Main level | |
| Great room | Main level | |
| Primary Bedroom | Second level | |
| Bedroom | Second level | |
| Bedroom | Second level | |
| Bedroom | Second level |