


















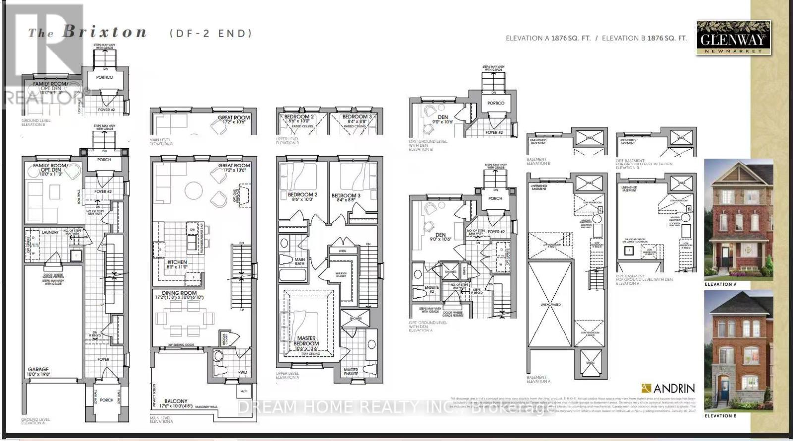
End Unit five Year Gorgeous 3+Den Bedroom Town Home In Glennway Estates Community; Open Concept Layout Of 1900 Sq.Ft; 9Ft Ceil On Ground & Main Fl. Open Concept Dining/Living Rm Filled With Natural Sun Light Easy Access Walk Out To Balcony. Walk To Yonge St, Schools, Transit, Upper Canada Mall.
| Room | Level | Size |
|---|---|---|
| Great room | Second level | |
| Kitchen | Second level | |
| Dining room | Second level | |
| Primary Bedroom | Third level | |
| Bedroom | Third level | |
| Bedroom | Third level | |
| Den | Ground level |