





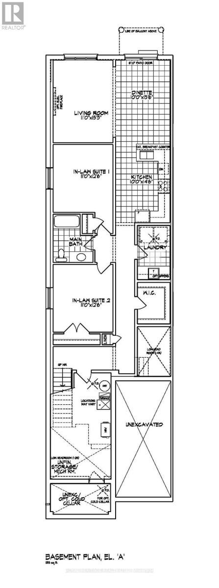
Plan ahead-invest in your future! This legal duplex, semi-detached style bungalow is finished top to bottom and offers exceptional versatility for homeowners and investors alike. The main floor features 9 ft ceilings, 3 spacious bedrooms, 3 bathrooms, and an open-concept kitchen with a walk-out to a deck overlooking Peel Park-complete with tennis courts, soccer fields, a baseball diamond, and more. Situated on a premium lot, the property also offers 4-car parking and separate utilities. The lower level includes a well-designed legal basement apt with 2 bedrooms, an open-concept living/family room, and a custom kitchen, along with a walk-out to a large backyard. Equipped with separate furnaces and meters, this home is ideal for multigenerational living or maximizing rental income. Live in one unit and rent the other, or lease both-a smart investment with strong income potential. Located in a highly desirable, family-friendly neighbourhood, just steps to parks, schools, shopping, restaurants, and everyday amenities, with easy access to Highways 401, 412, and 407 and public transit.
| Room | Level | Size |
|---|---|---|
| Kitchen | Main level | |
| Bedroom | Basement | |
| Eating area | Main level | |
| Great room | Main level | |
| Primary Bedroom | Main level | |
| Bedroom 2 | Main level | |
| Bedroom 3 | Main level | |
| Kitchen | Basement | |
| Eating area | Basement | |
| Living room | Basement | |
| Bedroom | Basement |