







Great investment opportunity in a prime transit-oriented location along the new LRT line! Live in one unit and rent out the other two, or enjoy all three levels as a spacious home for the entire family. This well-maintained triplex features 3 separately metered units, parking, and excellent income potential. Conveniently located just steps to Eglinton West Station on the University line, and minutes to Allen Road, Highway 401, and downtown Toronto. Enjoy unbeatable convenience with shopping, restaurants, schools, and everyday amenities all within walking distance - an ideal property for investors, multigenerational families, or savvy homeowners looking to offset their mortgage with rental income.
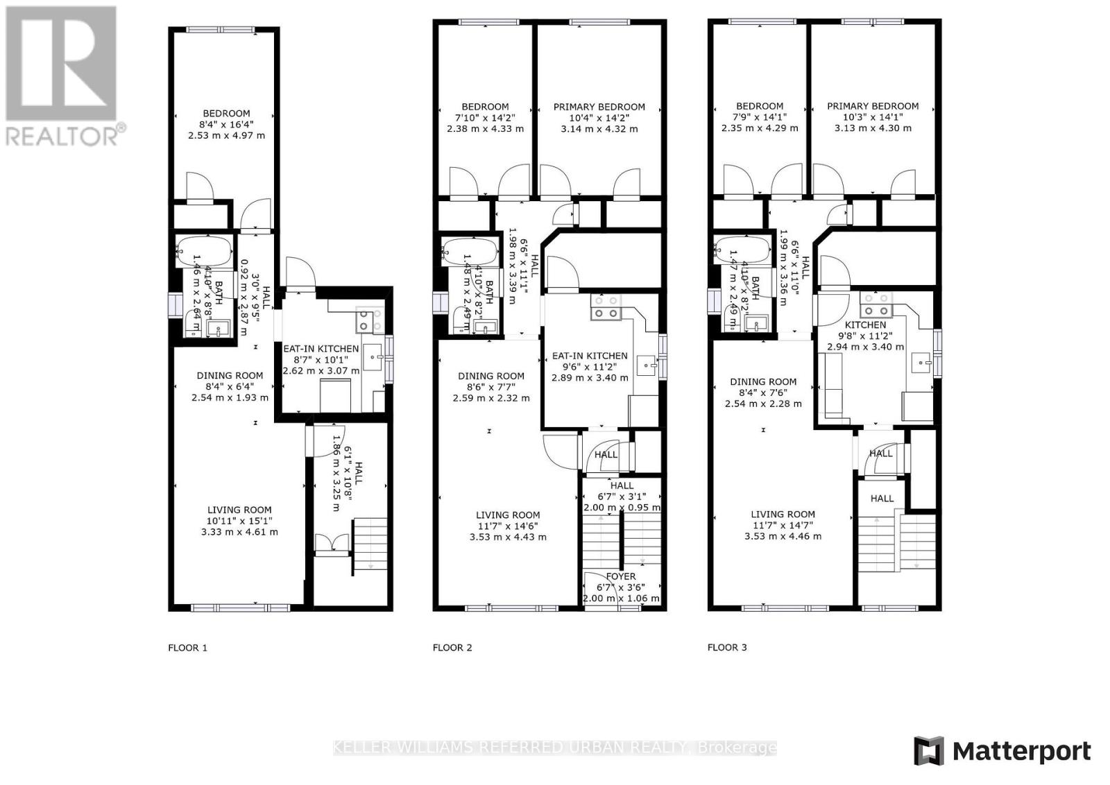
| Room | Level | Size |
|---|---|---|
| Living room | Lower level | |
| Kitchen | Lower level | |
| Bedroom | Lower level | |
| Living room | Second level | |
| Dining room | Second level | |
| Kitchen | Second level | |
| Bedroom | Second level | |
| Bedroom 2 | Second level | |
| Living room | Third level | |
| Kitchen | Third level | |
| Bedroom | Third level | |
| Bedroom 2 | Third level |