



















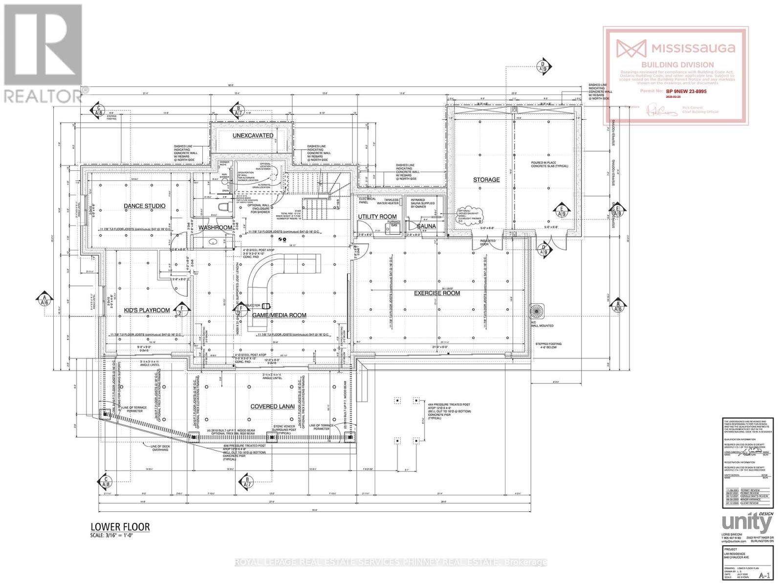
Approved plans and permits in place for a luxurious 4,000 sq. ft. masterpiece, complete with a grand deck overlooking the peaceful ravine and a seamless walkout to your own private oasis, this is a canvas for ultimate elegance and relaxation. Development charges have been paid. This expansive 100 ft lot offers unparalleled privacy, surrounded by nature's beauty. Fantastic opportunity to create your personal sanctuary in the highly coveted Lorne Park Estates, one of the most prestigious neighborhoods in the city. Lorne Park Estates offers a private beach, tennis court, playground, trails and preserves the natural elements of this community. Imagine your dream residence nestled on a serene cul-de-sac, with stunning views of a tranquil ravine and direct beach access. Located within the renowned Lorne Park School District and just moments from the scenic Waterfront Trail and Jack Darling Park, this is not just a home, it's a lifestyle.