













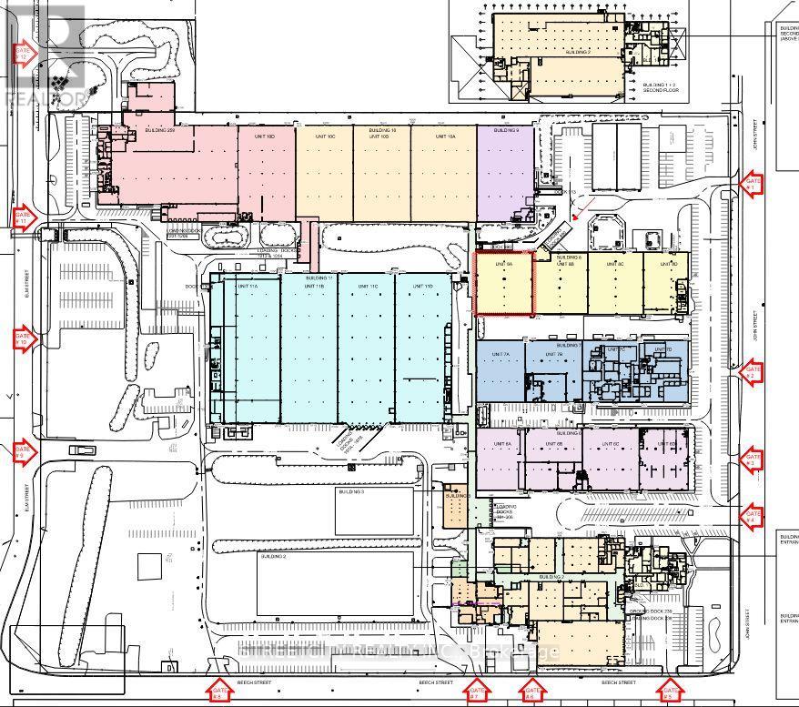
Clean, straightforward warehouse space in Aylmer! Fully renovated in 2022 with new NG tube heaters. Large grade level door into the space as well as a private truck leave loading dock, with the possibility of adding a second dock. 21' clearance. Separate board room and offices available on site.