


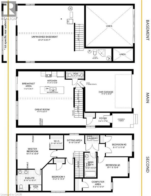
Designed for Modern Family Living. Welcome to the Broderick, a 1,949 sq. ft. two-storey home designed with family living in mind. The open-concept living room and kitchen are beautifully finished with laminate flooring and 9 ceilings, creating a warm and spacious feel. The kitchen is the heart of the home, enhanced with quartz countertops for a modern touch. Upstairs, you'll find four bedrooms, including a primary suite with a laminate custom regency-edge countertops with your choice of colour and a tiled shower with acrylic base. Additional thoughtful features include ceramic tile in all baths and the laundry room, a basement 3-piece rough-in, a fully sodded lot, and an HRV system for fresh indoor air. Enjoy easy access to Guelph and Waterloo, while savoring the charm of suburban life.
| Room | Level | Size |
|---|---|---|
| Sitting room | Second level | 8'6'' x 6'10'' |
| Laundry room | Second level | 9'0'' x 5'0'' |
| Bedroom | Second level | 13'3'' x 11'2'' |
| Bedroom | Second level | 11'0'' x 8'11'' |
| Bedroom | Second level | 13'2'' x 12'9'' |
| 4pc Bathroom | Second level | |
| Full bathroom | Second level | 10'1'' x 8'11'' |
| Primary Bedroom | Second level | 13'5'' x 14'1'' |
| Great room | Main level | 11'4'' x 23'4'' |
| Breakfast | Main level | 9'4'' x 11'4'' |
| Kitchen | Main level | 10'0'' x 11'4'' |
| 2pc Bathroom | Main level |