


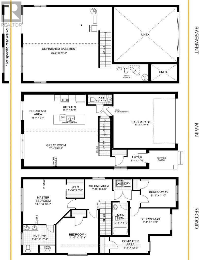
Designed for Modern Family Living. Welcome to the Broderick, a 1,949 sq. ft. two-storey home designed with family living in mind. The open-concept living room and kitchen are beautifully finished with laminate flooring and 9 ceilings, creating a warm and spacious feel. The kitchen is the heart of the home, enhanced with quartz countertops for a modern touch. Upstairs, you'll find four bedrooms, including a primary suite with a laminate custom regency-edge countertops with your choice of colour and a tiled shower with acrylic base. Additional thoughtful features include ceramic tile in all baths and the laundry room, a basement 3-piece rough-in, a fully sodded lot, and an HRV system for fresh indoor air. Enjoy easy access to Guelph and Waterloo, while savoring the charm of suburban life.
| Room | Level | Size |
|---|---|---|
| Primary Bedroom | Second level | |
| Bedroom 2 | Second level | |
| Bedroom 3 | Second level | |
| Laundry room | Second level | |
| Kitchen | Main level | |
| Living room | Main level | |
| Great room | Main level | |
| Eating area | Second level | |
| Bedroom 4 | Second level |