


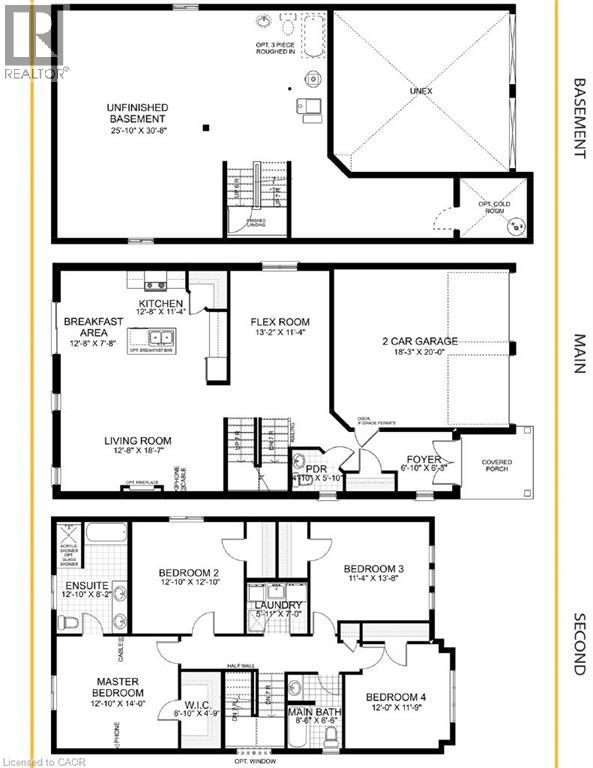
Our Most Popular Model. Meet the Oxford 2, a 2,225 sq. ft. home blending timeless elegance with modern functionality. Enter through grand double doors into a welcoming open-concept main floor, featuring 9 ceilings, laminate flooring throughout, and a stylish kitchen boasting quartz countertops and a walk-in pantry for maximum convenience. The upper floor offers three spacious bedrooms and a luxurious primary suite, complete with laminate custom regency-edge countertops with your choice of color in the ensuite and a tiled shower with an acrylic base. Additional highlights include a basement 3-piece rough-in, a fully sodded lot, and an HRV system, all backed by a 7-year warranty. Ideally situated near Guelph and Waterloo, this home offers peace and accessibility.
| Room | Level | Size |
|---|---|---|
| 4pc Bathroom | Second level | 7'0'' x 8'8'' |
| Laundry room | Second level | 5'0'' x 8'6'' |
| Bedroom | Second level | 15'5'' x 10'2'' |
| Bedroom | Second level | 13'8'' x 13'2'' |
| Bedroom | Second level | 12'10'' x 13'2'' |
| Primary Bedroom | Second level | 14'0'' x 12'6'' |
| Full bathroom | Second level | 7'10'' x 13'6'' |
| Great room | Main level | 11'4'' x 11'8'' |
| Breakfast | Main level | 9'8'' x 13'2'' |
| Kitchen | Main level | 9'4'' x 13'2'' |
| Living room | Main level | 18'7'' x 12'3'' |
| 2pc Bathroom | Main level | 5'10'' x 4'10'' |