












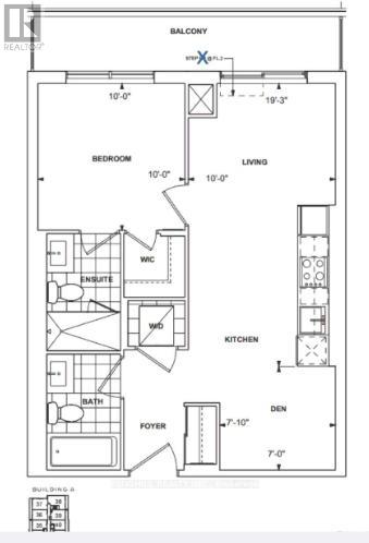
Welcome to Joystation! Ideally located in Markham just steps from convenient transit. This bright 1 Bedroom + Den, 2 Full Bathroom unit !!!!!(Currently the unique 1+1 with two bathrooms!!! Other 1+1 only one bathroom) features a desirable South exposure and comes with 1 parking space included. High-speed internet included! The primary bedroom includes walk-in closet! Landlord-installed blackout curtains provide added comfort and privacy!