









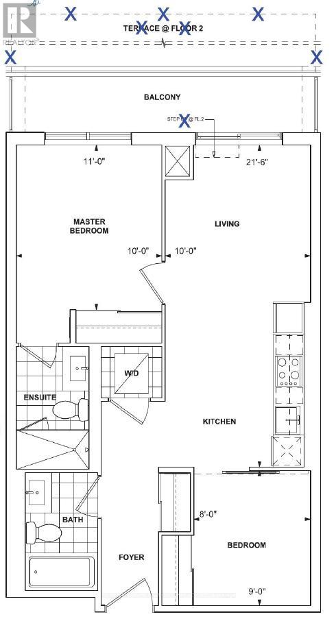
Welcome to Joy Station Condos in Markham! This modern 2- bedroom, 2 full bathroom suite is available for lease and ideally located on Markham Rd., just steps from the Mount Joy Go Station with direct access to Union Station. Featuring a bright south-facing exposure, the unit is filled with natural light through floor-to-ceiling windows and offers 9 ft ceilings an laminate floorings throughout. The open-concept living an dining area provides a functional and spacious layout, ideal for comfortable everyday living. The contemporary kitchen is equipped with quartz countertops, a tiled backsplash, and a center island. The primary bedroom features a walk-in closet and a private ensuite bathroom, while the second bedroom offers versatile space for a home office or guest room. Enjoy a full range of building amenities including a 24-hour concierge, fitness center, golf simulator, business center, and rooftop terrace with BBQs. Includes 1 parking space. Perfect for professionals, couples, or commuters seeking modern living in a highly convenient location.