








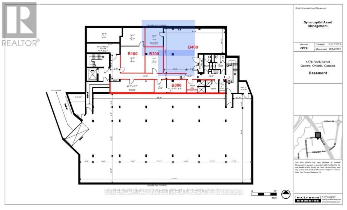
Approx 625 rentable square feet of turn-key office space in basement of well-managed office building! Currently divided into 2 large rooms forming an "L" shape, and can be divided further. Landlord can provide/organize desired fit-up at cost, pro-rated over the lease term! Space is currently used as physiotherapy/osteopathy/RMT wellness practitioners but has wide variety of applications.See marked-up floorplans in tandem with the following description: the proposed new space crops some of the (current) B400 open floor plan and closes it off for owner personal use; walls erected to divide the new space and doors opened between spaces as tenant requires. There is some flexibility re: placement of walls; possible inclusion of all or some gym equipment in the rental. Equipment is not for sale unless tenant is leasing space. All utilities and operating expenses included in the rent - fully Gross Lease! Escalations of $50/mo/year.Excellent location close to 417, Riverside Drive,Bank Street, and Billings Bridge shopping plaza. Building is home to professional tenants such as law offices, mental wellness practitioners, not-for-profit, technology, etc. Video walk through is available upon request.