




















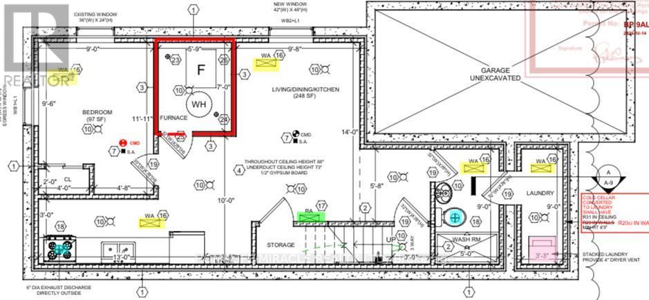
Welcome to this beautifully finished, move-in ready legal basement unit located in a quiet, family-friendly neighborhood Bright & Spacious Brand-New 1-Bedroom Legal Basement for Rent - Mississauga (Perivale Rd) - This bright and spacious home features 1 large bedroom, 1 full bathroom, and a generous open-concept living area, along with a modern kitchen equipped with brand-new appliances and ample storage. The unit includes a separate private entrance for added privacy, in-unit laundry, Wi-Fi, and three large windows that bring in plenty of natural light-rare for basement spaces. Conveniently located just 0.8 km from Erindale GO Station, with a bus stop only 100 m away and a short drive to Square One Shopping Centre, you'll also be close to grocery stores, schools, parks, and all essential amenities. Parking is available, and the neighborhood is safe, quiet, and well-connected. Ideal for working professionals or couples. Rent: $1700 /month | Utilities: 30% /Month. Available immediately . Or all inclusive $1800 with High Speed internet and one parking.