


















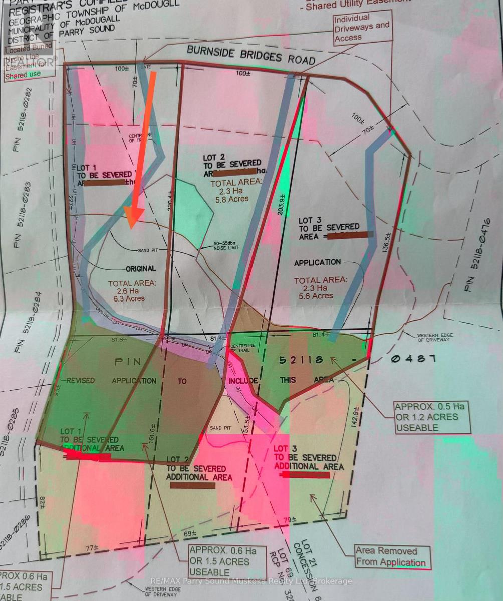
Stunning 6.3 acre building lot with 320 feet frontage on the outskirts of Parry Sound in the Township of McDougall. Hydro at the lot line. Located in one of the most desirable areas for residential rural homes Close to Mill lake/Mountain Basin/Portage Lake. A year-round maintained municipal road. A full lush forest for great privacy. Hydro at the road.Just minutes away from the town of Parry Sound with schools, College, shopping, theatre of the arts and hospital. Enjoy all season activities in the area. Go boating at many area lakes and Georgian Bay. ATVing, snowmobiling, hiking, ice fishing. Live rural yet be close to all necessities. Live work and play in cottage country. Click on the media arrow for video. Hst in addition to price.Taxes have not been assessed at the time of listing. This is a newly severed lot.