








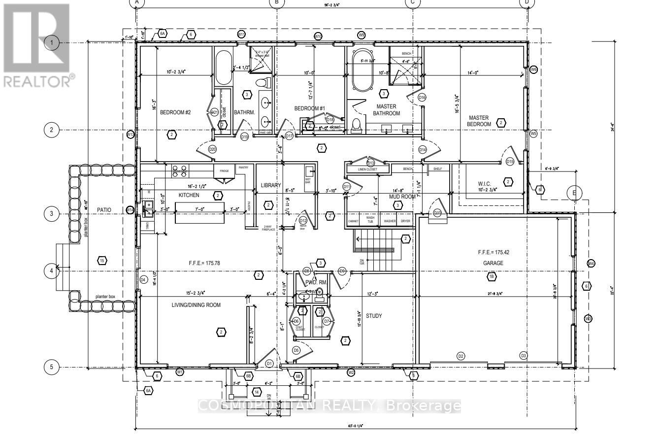
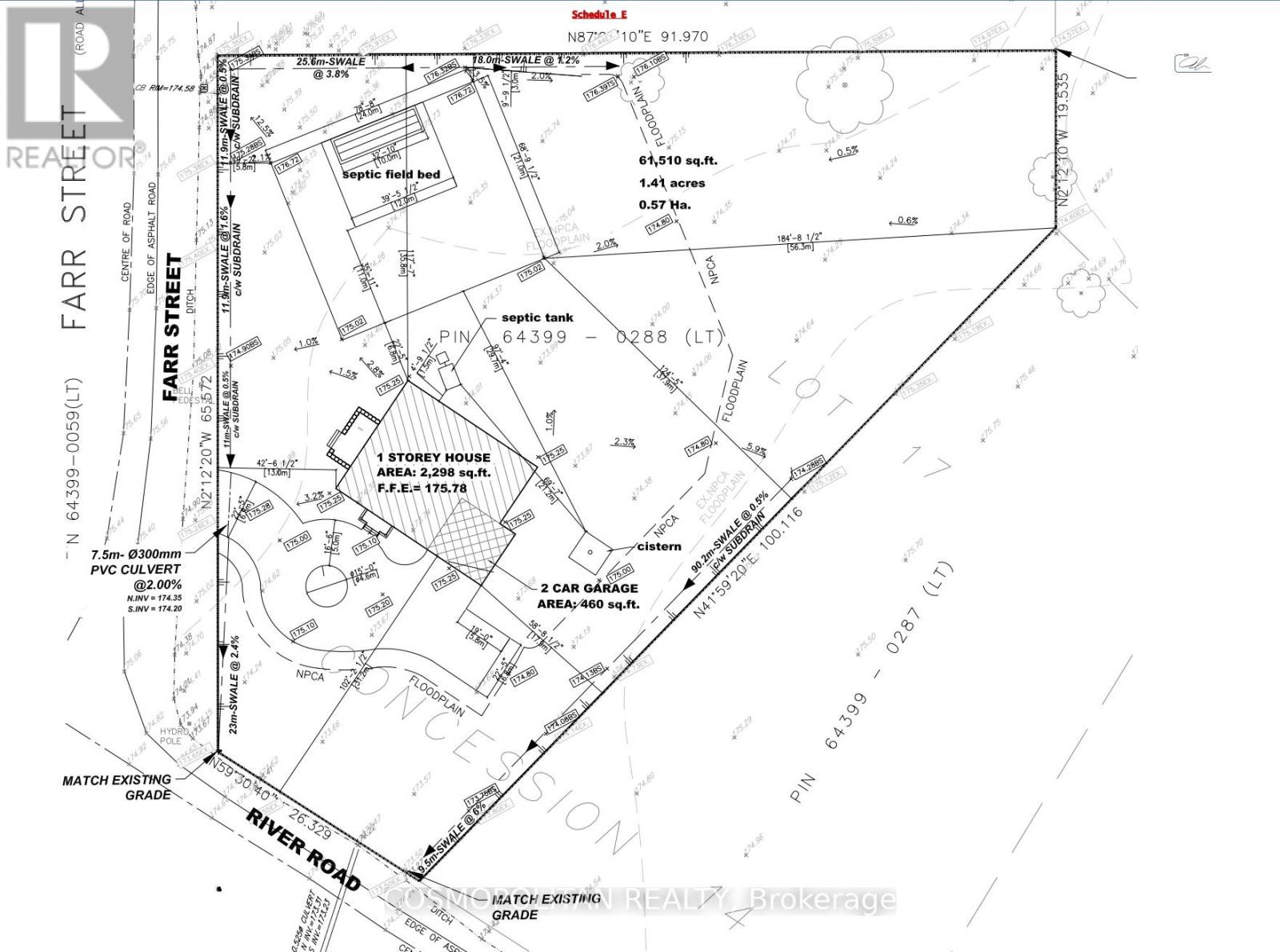
PRICED TO SELL - BUILD YOUR DREAM ESTATE ON A RARE 1.42 ACRE LOT IN PRESTIGIOUS PELHAM - a standout opportunity in a HIGH-END ESTATE COMMUNITY surrounded by LUXURY CUSTOM HOMES, just minutes from the WELLAND RIVER, CONSERVATION AREAS, TRAILS, AND AMENITIES. This premium 1.42 ACRE LOT offers an ideal footprint for a private residence with exceptional curb appeal and is READY FOR CONSTRUCTION, saving months of planning and carrying costs. PROPOSED PLANS AVAILABLE for a beautifully designed ~2,298 SQ.FT. CUSTOM BUNGALOW (3 BED, 3 BATH), allowing you to move forward with confidence or customize to your vision. Property is designed for CISTERN & SEPTIC, with HYDRO & GAS AVAILABLE AT THE LOT LINE. Enjoy the perfect balance of PEACE, PRIVACY, AND SPACE while remaining close to SCHOOLS, SHOPPING, AND QUICK ACCESS TO NIAGARA & QEW CORRIDORS. Whether you're an end-user building your FOREVER HOME or an investor seeking a SHOVEL-READY PROJECT WITH STRONG UPSIDE, this is a RARE OPPORTUNITY IN ONE OF PELHAM'S MOST DESIRABLE LOCATIONS.