



















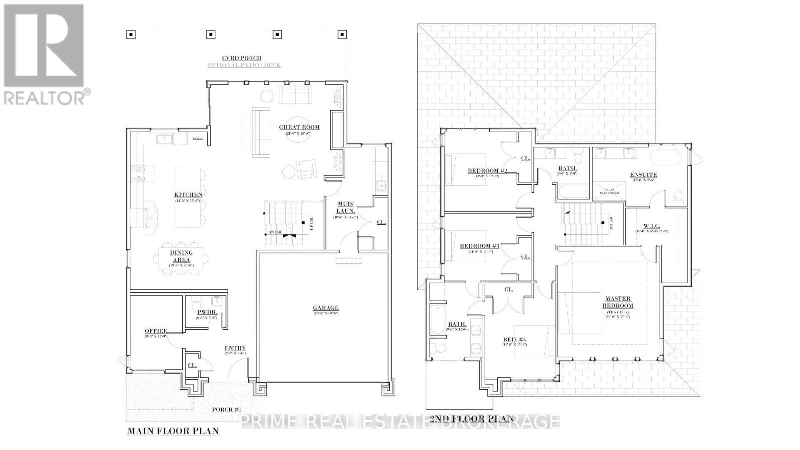
What if you could walk through your home before it's built, and change anything you want? That's how Halcyon Homes works.At 4232 Fallingbrook Road in The Heathwoods, Lambeth, this to-be-built 4-bedroom, 3.5-bathroom custom home sits on one of the community's most coveted lots: a premium 50' x 152' parcel backing onto mature trees. Privacy like this doesn't come along often.Every Halcyon home starts with a model concept, in this case the Arvada at approximately 2,800 sq ft, but nothing is locked in. You choose the layout, the finishes, and the flow of every room. Their design-build process is unlike anything you've experienced: transparent pricing, real-time plan modifications in their design studio, and a dedicated team that walks you through every decision without pressure or hidden costs.Pricing shown reflects the Arvada model. These are starting concepts to give you a real sense of what's possible. Reach out for a no-pressure discovery call and you'll learn more about new home construction than you thought possible.The Heathwoods puts you minutes from Lambeth Village's cafés and local shops, with quick access to Hwy 401/402 when you need it. Walk through The Myra Model Home at 4100 Fallingbrook Road to experience Halcyon's quality firsthand. Pricing includes HST rebate. A lot premium of $60,000 plus HST , not included in the price. Ask us about the $100,000 builder incentive. Only a few lots remain.
| Room | Level | Size |
|---|---|---|
| Office | Main level | |
| Bathroom | Second level | |
| Bathroom | Second level | |
| Bathroom | Second level | |
| Dining room | Main level | |
| Kitchen | Main level | |
| Great room | Main level | |
| Laundry room | Main level | |
| Primary Bedroom | Second level | |
| Bedroom 2 | Second level | |
| Bedroom 3 | Second level | |
| Bedroom 4 | Second level |