




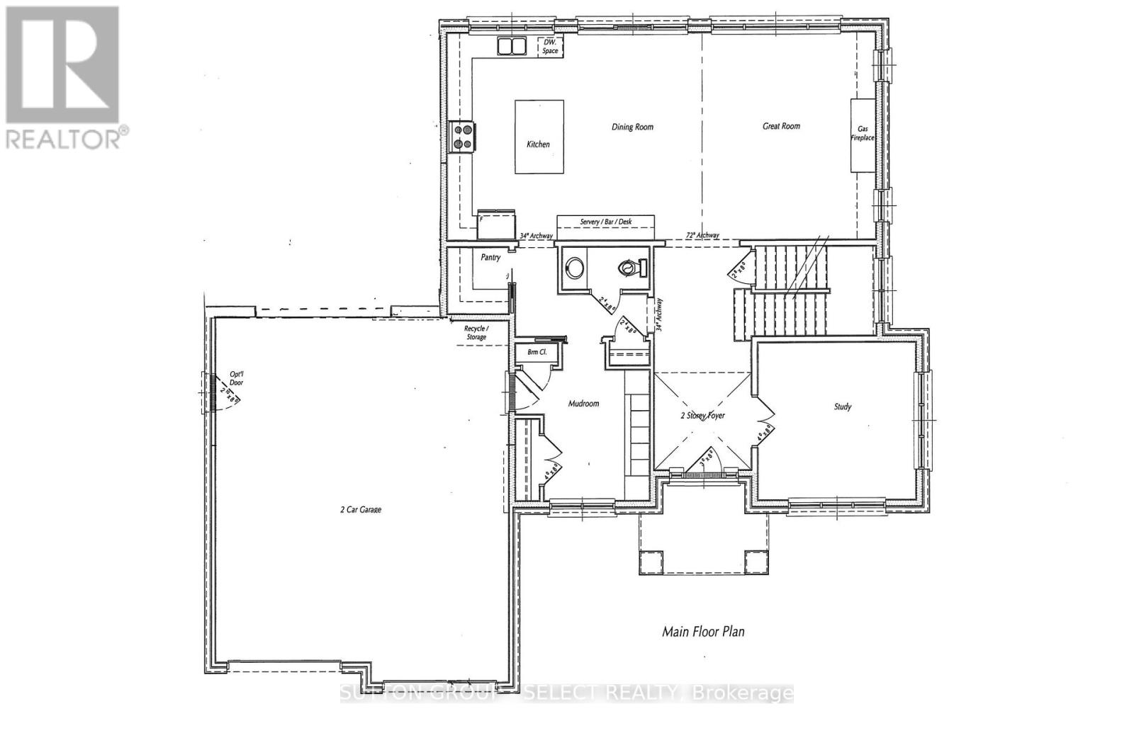
Build your family's next home in North London's premiere new community, Sunningdale Court, nestled between Sunningdale Golf & Country Club and Medway Valley Heritage Forest. Marquis Developments Hassan plan has a family friendly layout with open and spacious main floor living area across the back of the home that includes kitchen with huge island and walk-in pantry, dining area and great room with gas fireplace. Private main floor study has vaulted ceiling and large window. Oversized mudroom with bench and plenty of storage. The primary suite includes a huge walk-in closet and luxury 5-piece ensuite bathroom with double vanity, glass shower and free-standing tub. Bedrooms 2 and 3 each have walk-in closets and their own bathroom vanity and share a unique Jack & Jill 2-piece with shower. Fourth bedroom option and/or customization available. Front elevation images are for illustration purpose only. Other plans available or bring your ideas and Marquis will design your custom home. Now selling in phase 2 and 3. Contact listing agent for more details.