













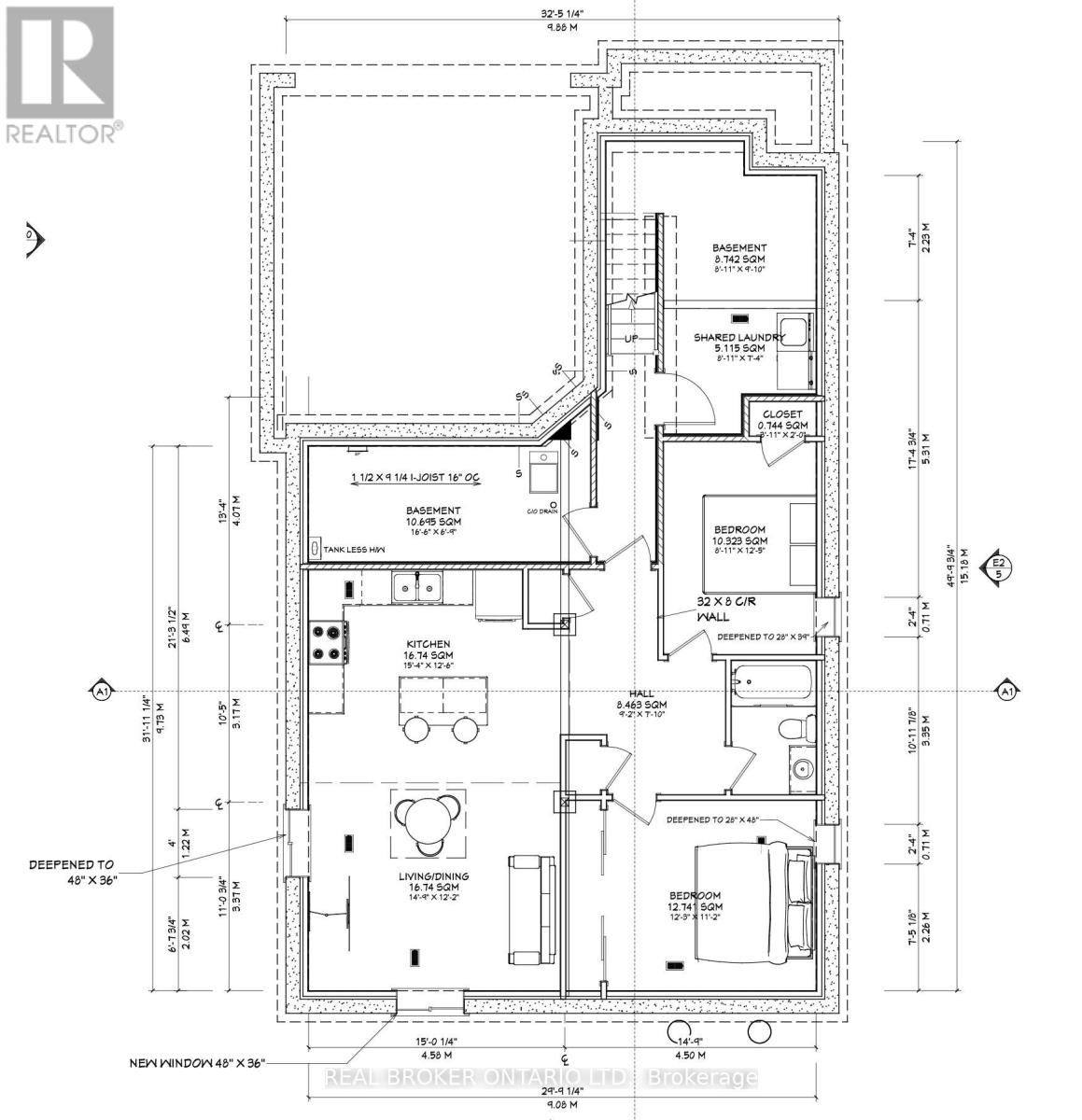
Move right into this recently completed, legal basement apartment offering modern finishes and everyday convenience. With utilities included, this bright and thoughtfully designed space features luxury vinyl plank flooring throughout and large windows that bring in plenty of natural light. The functional layout includes two well-sized bedrooms, each with its own closet, ideal for comfortable living. The contemporary kitchen is equipped with sleek quartz countertops and a built-in dishwasher, providing both style and practicality. Shared laundry is conveniently located in a common area, and one parking space is included. Tenant plays flat rate of 100/month for heat, hydro and water.