






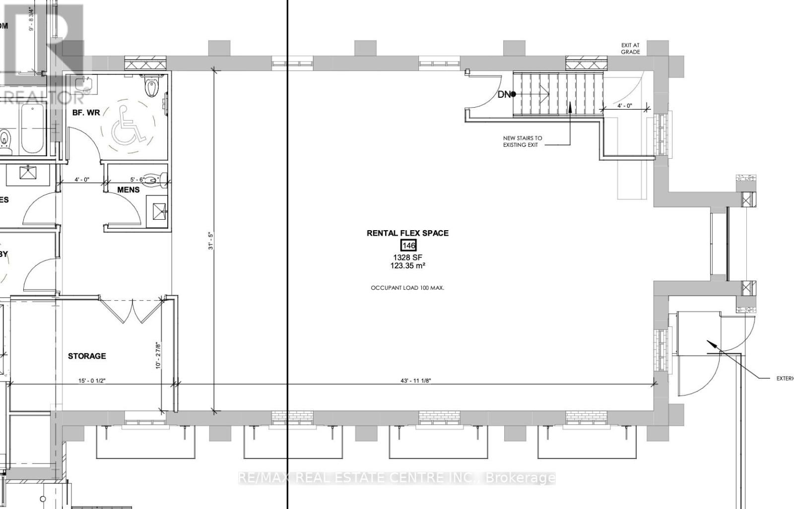
This is a great opportunity to make a historic space into a new great commercial offering. The main floor has soaring cathedral ceilings, multiple accesses, private side yard area. Also an opportunity to make this work and live space, with the Church main floor area able to be converted into an epic residence with an access to below work area. This building has all the zoning approvals within C5 OR special permissions for Cafe, Assembly hall, Club House, or Theatre. The building is being repositioned as a mixed use development. Work with the builder to customize the space. Just steps from Broadway, great location with great visibility. Tons of public and street parking in the area. Two floors available together or rent out the top or bottom separately ...over 4,000 sqft together or over 2,000 per level.